Vente

Appartement - Monte-Carlo

Référence : MC378
Centre ville - Ascenseur - Beaux volumes - Accessible PMR

Triplex Townhouse à Monaco

Nous consulter

Aperçu

Surface habitable : 333 m²
Vue : Ville - Vis-à-vis
Terrasse : 49 m²

Description

Situé dans la résidence "Villa Palazzino", à deux pas du prestigieux quartier du Carré d'Or, du Casino.

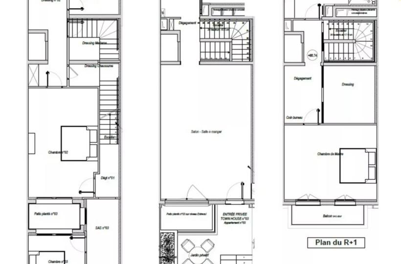
D'une superficie d'environ 333 m² sur trois étages, l’appartement est situé à l'abri des regards offrant un accès indépendant. Entièrement aménagé sur mesure, notamment des hauts plafonds et du mobilier personnalisés provenant venant des quatre coins du monde.

L'entrée se fait par un patio extérieur.

Au rez-de-chaussée et à l'étage principal, un hall d'entrée avec placards, un grand salon avec salle à manger et une grande cuisine entièrement équipée.

Idéalement située à l'étage supérieur, une luxueuse suite comprenant un élégant dressing et une grande salle de bains s'ouvrant sur une loggia.

Au rez-de-chaussée inférieur, une chambre principale de 25 m² avec 3 dressings (sacs, chaussures, vêtements) et une salle de bains de 16 m².
Une seconde chambre généreuse avec salle de douche légèrement en retrait et accessible par une coursive. Les deux chambres sont séparées par un patio faisant puit de lumière.

La maison est équipée de l'air conditionné, d'alarmes et de caméras de sécurité. Tous les étages sont accessibles par un ascenseur privé ou par des escaliers.

Trois places de parking ainsi qu'une cave de 50 m² sont incluses dans le prix.

Ce document n’a aucune valeur contractuelle: Le descriptif, les plans, et les surfaces ne sont donnés qu’à titre indicatif.
Honoraires agence 3% HT

Localisation

  • Région : Monaco
  • Secteur : Monaco
  • Ville : Monte-Carlo

Organiser une visite

Derniers biens vus

Parcourir les derniers biens vus

Villa - Mougins

Villa - Mougins

Villa - Cagnes-sur-Mer

Biens similaires

Découvrez d'autres bien qui pourraient vous convenir.

Appartement

Monte-Carlo

5 000 000 €
79 m²
11 m²
Dégagée
1

Place des Moulins

Voir l'annonce
Appartement

Monte-Carlo

18 500 000 €
200 m²
15 m²
Dégagée
3

Face au Casino

Voir l'annonce
Appartement

Monte-Carlo

3 300 000 €
65 m²
5 m²
Dégagée
0

Appartement de luxe rénové de 2 pièces au Golden Square

Voir l'annonce
Appartement

Monte-Carlo

Nous consulter
190 m²
82 m²
Vis-à-vis
0

Appartement de luxe au cœur du Carré d'Or avec configuration flexible et terrasse privée

Voir l'annonce
Appartement

Monte-Carlo

Nous consulter
151 m²
11 m²
Panoramique
3

Port de Monaco appartement familial

Voir l'annonce
Appartement

Monte-Carlo

Nous consulter
140 m²
10 m²
Vis-à-vis
3

Proche Carré d’Or

Voir l'annonce

Vous pouvez prendre connaissance des modalités de traitement de vos données personnelles sur la page .