Vente

Appartement - Paris 1er

Référence : PRD55

Appartement rénové - Place du Marché Saint Honoré

1 395 000 €

Aperçu

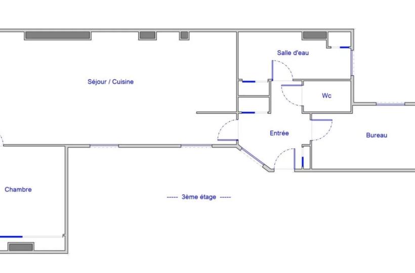
Surface habitable : 73 m²
Chambres : 2
DPE

Description

Idéalement situé sur la Place du marché Saint Honoré, cet appartement d'une surface de 72,46 m2 loi Carrez se situe au 3ème étage d'un bel immeuble, accessible par escalier

Récemment rénové, l'appartement, agencé de manière optimale, se compose d'une grand réception intégrant cuisine américaine équipée, salle à manger et salon.

Côté rue : une chambre parentale avec dressing
Côté cour : une petite chambre/bureau

Une grande salle de douche complète le bien.

Localisation

  • Région : Paris
  • Secteur : Rive Droite
  • Ville : Paris 1er

Conditions de Vente

  • Quelles sont les étapes du processus d'acquisition en France?

    Une fois les visites effectuées et le dévolu jeté sur une propriété, l’accord des parties est scellé par la signature d’une offre d’achat engageante précisant les conditions essentielles de la vente. Le dossier est alors confié à un notaire pour la signature d’une promesse de vente (compromis de vente ou promesse unilatérale de vente). Le notaire réalise ensuite de nombreuses vérifications pour apporter la sécurité juridique nécessaire à l’opération, avant la signature d’un acte authentique définitif de vente.

    Pour en savoir plus sur le processus détaillé de vente, cliquez ici.

  • Quelle est la durée du processus d'acquisition en France?

    Bien que chaque dossier soit différent, en raison notamment des considérations notariales qui entourent l’opération, il faut généralement compter un délai de 3 à 4 mois entre la signature de l’offre d’achat et la remise des clefs.

  • Quels sont les frais d’acquisition en France ?

    Les frais d’agence sont compris dans le prix de vente.

    À l’inverse, les frais de notaire sont à la charge de l’acquéreur en sus du prix de vente. Le calcul des frais de notaire dépend de différents paramètres (situation géographique du bien, présence de mobilier vendu ou non, prêt bancaire souscrit par l’acquéreur ou non, …), mais ils avoisinent généralement 7% du prix d’acquisition. Des frais de notaire réduits peuvent s’appliquer pour les biens neufs vendus par des professionnels.

  • Dois-je verser un dépôt de garantie au moment de mon engagement ?

    Un dépôt de garantie, d’un montant habituellement fixé à 10% du prix de vente, est à verser sur le compte du notaire concomitamment à la signature de la promesse de vente.

  • Quelles mesures d’accompagnement proposez-vous ?

    L’accompagnement sur mesure et le conseil des acquéreurs, de la visite à la signature de la vente définitive, sont au cœur de nos engagements :

    • un accompagnement commercial pour répondre à toutes vos questions
    • un accompagnement juridique et fiscal pour le déroulement et la structuration de l’acquisition
    • un accompagnement bancaire pour un financement adapté le cas échéant
    • un accompagnement pour vos projets de travaux et l’obtention des autorisations d’urbanisme pré-requises

Organiser une visite

Derniers biens vus

Parcourir les derniers biens vus

Appartement - Grèce

Villa - Roquebrune-Cap-Martin

Villa - Gassin

Vous pouvez prendre connaissance des modalités de traitement de vos données personnelles sur la page .